Algemeen
**Wonen in het hart van Den Helder – Diaconiestraat 30**
Ben je klaar voor je eerste of volgende stap op de woningmarkt? Zoek je een gezellig huis met alles om de hoek, liefdevol onderhouden én voorzien van moderne gemakken? Dan hoef je niet verder te zoeken! Aan de Diaconiestraat 30 vind je precies wat je nodig hebt. Deze knusse en goed geïsoleerde eengezinswoning uit 1984 staat middenin he... Meer informatie
Ben je klaar voor je eerste of volgende stap op de woningmarkt? Zoek je een gezellig huis met alles om de hoek, liefdevol onderhouden én voorzien van moderne gemakken? Dan hoef je niet verder te zoeken! Aan de Diaconiestraat 30 vind je precies wat je nodig hebt. Deze knusse en goed geïsoleerde eengezinswoning uit 1984 staat middenin he... Meer informatie
-
Kenmerken
Alle kenmerken Type object Woonhuis, eengezinswoning, geschakelde woning Bouwperiode 1984 Status Verkocht Aangeboden sinds Dinsdag 2 december 2025 -
Locatie
Kenmerken
| Overdracht | |
|---|---|
| Referentienummer | 00050 |
| Vraagprijs | € 245.000,- k.k. |
| Elektra | € 75,- |
| Gas | € 125,- |
| Water | € 52,- |
| Status | Verkocht |
| Aanvaarding | Direct |
| Aangeboden sinds | Dinsdag 2 december 2025 |
| Laatste wijziging | Zaterdag 21 maart 2026 |
| Bouw | |
|---|---|
| Type object | Woonhuis, eengezinswoning, geschakelde woning |
| Soort bouw | Bestaande bouw |
| Bouwperiode | 1984 |
| Dakbedekking | Bitumen |
| Type dak | Platdak |
| Isolatievormen | Dakisolatie, Dubbel glas, HR-glas, Vloerisolatie |
| Oppervlaktes en inhoud | |
|---|---|
| Perceeloppervlakte | 81 m² |
| Woonoppervlakte | 75 m² |
| Woonkameroppervlakte | 26,57 m² |
| Keukenoppervlakte | 7,03 m² |
| Inhoud | 250 m³ |
| Oppervlakte externe bergruimte | 13 m² |
| Indeling | |
|---|---|
| Aantal bouwlagen | 2 |
| Aantal kamers | 4 (waarvan 3 slaapkamers) |
| Aantal badkamers | 1 (en 1 apart toilet) |
| Locatie | |
|---|---|
| Ligging | In centrum |
| Tuin | |
|---|---|
| Type | Achtertuin |
| Hoofdtuin | Ja |
| Oriëntering | Zuid-west |
| Heeft een achterom | Ja |
| Staat | Prachtig aangelegd |
| Energieverbruik | |
|---|---|
| Energielabel | C |
| CV ketel | |
|---|---|
| CV ketel | HR Combi ketel Interfit |
| Warmtebron | Gas |
| Bouwjaar | 2022 |
| Combiketel | Ja |
| Eigendom | Eigendom |
| Uitrusting | |
|---|---|
| Warm water | CV-ketel |
| Verwarmingssysteem | Centrale verwarming, Houtkachel, Kachel |
| Keukenvoorzieningen | Inbouwapparatuur |
| Badkamervoorzieningen | Douche, Toilet, Wastafel |
| Heeft kabel-tv | Ja |
| Heeft een rookkanaal | Ja |
| Glasvezelaansluiting aanwezig | Ja |
| Tuin aanwezig | Ja |
| Beschikt over een internetverbinding | Ja |
| Heeft schuur/berging | Ja |
| Kadastrale gegevens | |
|---|---|
| Kadastrale aanduiding | Den Helder E 1070 |
| Perceeloppervlakte | 81 m² |
| Eigendomsituatie | Eigen grond |
Beschrijving
**Wonen in het hart van Den Helder – Diaconiestraat 30**
Ben je klaar voor je eerste of volgende stap op de woningmarkt? Zoek je een gezellig huis met alles om de hoek, liefdevol onderhouden én voorzien van moderne gemakken? Dan hoef je niet verder te zoeken! Aan de Diaconiestraat 30 vind je precies wat je nodig hebt. Deze knusse en goed geïsoleerde eengezinswoning uit 1984 staat middenin het levendige hart van Den Helder en is een perfecte kans voor starters en jonge gezinnen die van gemak én comfort houden.
Wonen op een toplocatie
Laat je hart een sprongetje maken, want hier sla je twee vliegen in één klap: je woont namelijk op steenworp afstand van het centrum én op loopafstand van de zee! Ja echt, binnen tien minuten sta je met je voeten in het zand of wandel je heerlijk over de dijk—zo wordt iedere dag een beetje vakantie. Bovendien ben je binnen no time bij uitgaansgelegenheden, winkels en openbaar vervoer. Geen gedoe dus als je na een avondje stappen gewoon lekker naar huis wilt rollen. Zelfs de Rijkswerf, een van de leukste plekken van Den Helder, ligt op slechts vijf minuutjes lopen.
Fijne gezinswoning met een zonnige tuin
Deze geschakelde woning is ideaal ingedeeld met volop mogelijkheden. Met een perceeloppervlakte van 81 m2 is het huis lekker overzichtelijk, behaaglijk en toch verrassend ruim. De achtertuin van zo’n 42 m2 heeft altijd wel een lekker plekje in de zon, of je nu wilt BBQ ’en met vrienden, spelen met de kinderen of gewoon ontspannen met een goed boek. Achterin vind je ook nog eens een handig chalet dat perfect dient als berging voor fietsen, tuinspullen of extra opslag—keuze genoeg dus! De tuin heeft een steeg met een achterom.
Lekker wonen met moderne gemakken
Je bent natuurlijk benieuwd naar het wooncomfort—en laat daar nou juist goed aan gedacht zijn! In 2022 is er een nieuwe cv-combiketel geplaatst en dankzij de kunststof kozijnen en deuren hoef jij je voorlopig geen zorgen te maken over onderhoud. Zelfs het platte dak is al vernieuwd in 2005, zodat je optimaal kunt genieten zonder onverwachte verrassingen. En laten we eerlijk zijn: hoe fijn is het om gewoon de bus of trein te kunnen pakken zonder eerst je hele auto te moeten ontwarren van een overvolle parkeerplaats? De Diaconiestraat is een autoluwe straat, dus lekker rustig én veilig voor spelende kinderen. Parkeren? Dat doe je met een vergunning, of je gebruikt de vrije parkeerplaatsen.
Praktisch, veilig en toekomstbestendig
Als starter of jong gezin wil je een huis dat meegroeit met jouw plannen. Dat zit hier helemaal goed. De ligging is ideaal: de basisschool, supermarkt of huisarts liggen allemaal op korte loop- of fietsafstand. Ook kun jij hier nog alle kanten op qua indeling en sfeer. Voeg je eigen stempel toe, maak het helemaal van jezelf en creëer het warme thuis waar je naar verlangt.
Enthousiast geworden?
Kortom, Diaconiestraat 30 heeft alles in zich om de perfecte basis te vormen voor jou en je gezin. Betaalbaar, comfortabel, energiezuinig én op één van de beste plekjes van Den Helder. Kom vooral zelf ervaren wat deze woning zo uniek maakt en wie weet, voelt het straks als thuiskomen wanneer je die drempel overstapt...
Maak snel een afspraak voor een bezichtiging en wie weet vieren jullie de volgende keer al een housewarming in je nieuwe huis!
Ben je klaar voor je eerste of volgende stap op de woningmarkt? Zoek je een gezellig huis met alles om de hoek, liefdevol onderhouden én voorzien van moderne gemakken? Dan hoef je niet verder te zoeken! Aan de Diaconiestraat 30 vind je precies wat je nodig hebt. Deze knusse en goed geïsoleerde eengezinswoning uit 1984 staat middenin het levendige hart van Den Helder en is een perfecte kans voor starters en jonge gezinnen die van gemak én comfort houden.
Wonen op een toplocatie
Laat je hart een sprongetje maken, want hier sla je twee vliegen in één klap: je woont namelijk op steenworp afstand van het centrum én op loopafstand van de zee! Ja echt, binnen tien minuten sta je met je voeten in het zand of wandel je heerlijk over de dijk—zo wordt iedere dag een beetje vakantie. Bovendien ben je binnen no time bij uitgaansgelegenheden, winkels en openbaar vervoer. Geen gedoe dus als je na een avondje stappen gewoon lekker naar huis wilt rollen. Zelfs de Rijkswerf, een van de leukste plekken van Den Helder, ligt op slechts vijf minuutjes lopen.
Fijne gezinswoning met een zonnige tuin
Deze geschakelde woning is ideaal ingedeeld met volop mogelijkheden. Met een perceeloppervlakte van 81 m2 is het huis lekker overzichtelijk, behaaglijk en toch verrassend ruim. De achtertuin van zo’n 42 m2 heeft altijd wel een lekker plekje in de zon, of je nu wilt BBQ ’en met vrienden, spelen met de kinderen of gewoon ontspannen met een goed boek. Achterin vind je ook nog eens een handig chalet dat perfect dient als berging voor fietsen, tuinspullen of extra opslag—keuze genoeg dus! De tuin heeft een steeg met een achterom.
Lekker wonen met moderne gemakken
Je bent natuurlijk benieuwd naar het wooncomfort—en laat daar nou juist goed aan gedacht zijn! In 2022 is er een nieuwe cv-combiketel geplaatst en dankzij de kunststof kozijnen en deuren hoef jij je voorlopig geen zorgen te maken over onderhoud. Zelfs het platte dak is al vernieuwd in 2005, zodat je optimaal kunt genieten zonder onverwachte verrassingen. En laten we eerlijk zijn: hoe fijn is het om gewoon de bus of trein te kunnen pakken zonder eerst je hele auto te moeten ontwarren van een overvolle parkeerplaats? De Diaconiestraat is een autoluwe straat, dus lekker rustig én veilig voor spelende kinderen. Parkeren? Dat doe je met een vergunning, of je gebruikt de vrije parkeerplaatsen.
Praktisch, veilig en toekomstbestendig
Als starter of jong gezin wil je een huis dat meegroeit met jouw plannen. Dat zit hier helemaal goed. De ligging is ideaal: de basisschool, supermarkt of huisarts liggen allemaal op korte loop- of fietsafstand. Ook kun jij hier nog alle kanten op qua indeling en sfeer. Voeg je eigen stempel toe, maak het helemaal van jezelf en creëer het warme thuis waar je naar verlangt.
Enthousiast geworden?
Kortom, Diaconiestraat 30 heeft alles in zich om de perfecte basis te vormen voor jou en je gezin. Betaalbaar, comfortabel, energiezuinig én op één van de beste plekjes van Den Helder. Kom vooral zelf ervaren wat deze woning zo uniek maakt en wie weet, voelt het straks als thuiskomen wanneer je die drempel overstapt...
Maak snel een afspraak voor een bezichtiging en wie weet vieren jullie de volgende keer al een housewarming in je nieuwe huis!
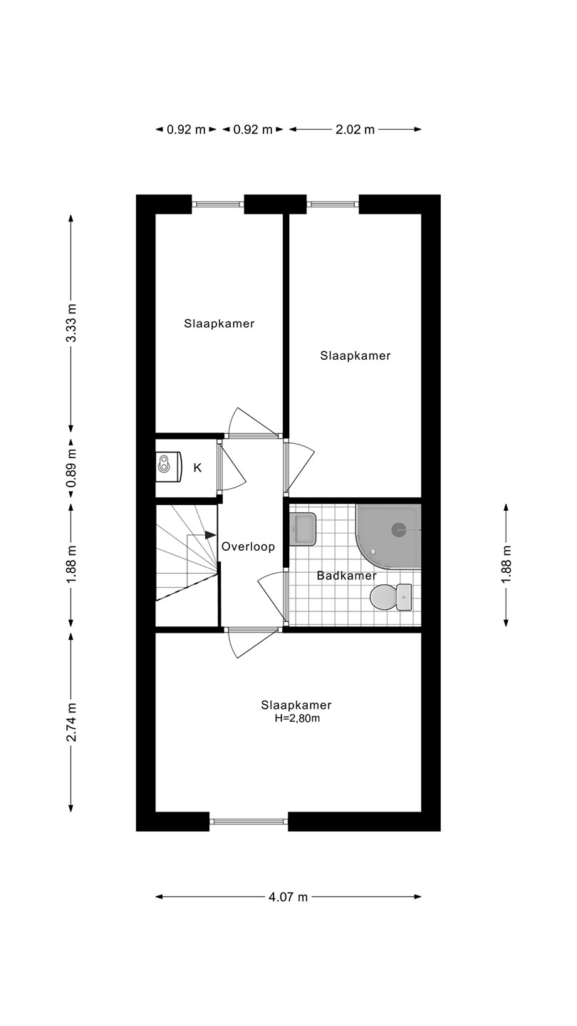
Indeling
De woning ligt in een auto arme straat. Ideaal voor de rust en kind vriendelijkheid.
Gelegen in het centrum van Den Helder ben je binnen een paar minuten bij alles wat je om je heen wilt hebben.
Vanuit de straat kom je de woning in en ben je in een hal. Hierin is de wc gelegen en is de vaste trap naar de eerste verdieping te vinden.
Van de hal loop je de open woonkamer in. Aan de voorzijde (straat zijde) is de keuken gesitueerd die in open verbinden staat met de woonkamer.
De woonkamer is ruim van opzet met open grote ramen naar de achtertuin.
Aan de achterzijde is nog een houtkachel te vinden voor bijverwarming.
De keuken is van allerlei benodigdheden voorzien. Deze is weliswaar al wat ouder maar nog steeds netjes en bruikbaar.
Vanuit de woonkamer kan je de ruime achtertuin inlopen. Deze is voorzien van een groot chalet die als schuur dienst doet.
Vanuit deze schuur loop je de steeg in.
Gelegen in het centrum van Den Helder ben je binnen een paar minuten bij alles wat je om je heen wilt hebben.
Vanuit de straat kom je de woning in en ben je in een hal. Hierin is de wc gelegen en is de vaste trap naar de eerste verdieping te vinden.
Van de hal loop je de open woonkamer in. Aan de voorzijde (straat zijde) is de keuken gesitueerd die in open verbinden staat met de woonkamer.
De woonkamer is ruim van opzet met open grote ramen naar de achtertuin.
Aan de achterzijde is nog een houtkachel te vinden voor bijverwarming.
De keuken is van allerlei benodigdheden voorzien. Deze is weliswaar al wat ouder maar nog steeds netjes en bruikbaar.
Vanuit de woonkamer kan je de ruime achtertuin inlopen. Deze is voorzien van een groot chalet die als schuur dienst doet.
Vanuit deze schuur loop je de steeg in.
Eerste verdieping
Met een vaste trap kom je op de eerste verdieping.
Hier vind je 3 slaapkamers en een badkamer.
Aan de voorzijde is over de breedte de grootste slaapkamer terug te vinden.
Aan de achterzijde zijn 2 ruime lange slaapkamers gesitueerd.
De badkamer is in het midden tussen de slaapkamers geplaatst.
Deze is betegeld, heeft een douche en wastafel een een tweede toilet.
Hier vind je 3 slaapkamers en een badkamer.
Aan de voorzijde is over de breedte de grootste slaapkamer terug te vinden.
Aan de achterzijde zijn 2 ruime lange slaapkamers gesitueerd.
De badkamer is in het midden tussen de slaapkamers geplaatst.
Deze is betegeld, heeft een douche en wastafel een een tweede toilet.
Tweede verdieping
n.v.t.
Tuin
De achtertuin is de hoofdtuin.
Deze is gericht op het zuiden (ZZW) en sluit aan op een steeg.
De tuin is 10 meter diep en 4.5 meter breed.
Deze is gericht op het zuiden (ZZW) en sluit aan op een steeg.
De tuin is 10 meter diep en 4.5 meter breed.