Algemeen
Wonen in een heerlijk ruim huis in De Schooten – Robijn Reijntjesstraat 65!
Met een vanaf prijs van € 425.000,- echt een winner!
Wauw, wat een plek! Je vindt deze fantastische, geschakelde eengezinswoning aan de Robijn Reijntjesstraat 65 in het gezellige Den Helder. Aan de rand van Den Helder, in de Schooten; vrij uitzicht aan de voorkant en een rustige omgeving ben je al snel thuis. Ben je... Meer informatie
Met een vanaf prijs van € 425.000,- echt een winner!
Wauw, wat een plek! Je vindt deze fantastische, geschakelde eengezinswoning aan de Robijn Reijntjesstraat 65 in het gezellige Den Helder. Aan de rand van Den Helder, in de Schooten; vrij uitzicht aan de voorkant en een rustige omgeving ben je al snel thuis. Ben je... Meer informatie
-
Kenmerken
Alle kenmerken Type object Woonhuis, eengezinswoning, geschakelde woning Bouwperiode 1969 Status Verkocht onder voorbehoud Aangeboden sinds Zaterdag 15 november 2025 -
Locatie
Kenmerken
| Overdracht | |
|---|---|
| Referentienummer | 00049 |
| Vraagprijs | € 425.000,- k.k. |
| Servicekosten | € 25,- |
| Elektra | € 45,- |
| Gas | € 100,- |
| Water | € 45,- |
| Inrichting | Ja |
| Inrichting | Gestoffeerd |
| Status | Verkocht onder voorbehoud |
| Aanvaarding | In overleg |
| Aangeboden sinds | Zaterdag 15 november 2025 |
| Laatste wijziging | Vrijdag 28 november 2025 |
| Bouw | |
|---|---|
| Type object | Woonhuis, eengezinswoning, geschakelde woning |
| Soort bouw | Bestaande bouw |
| Bouwperiode | 1969 |
| Dakbedekking | Dakpannen |
| Type dak | Zadeldak |
| Isolatievormen | Dakisolatie, Dubbel glas, HR-glas, Muurisolatie, Spouwmuren, Vloerisolatie |
| Oppervlaktes en inhoud | |
|---|---|
| Perceeloppervlakte | 160 m² |
| Woonoppervlakte | 139 m² |
| Woonkameroppervlakte | 36,9 m² |
| Keukenoppervlakte | 8,53 m² |
| Inhoud | 465 m³ |
| Oppervlakte externe bergruimte | 20 m² |
| Indeling | |
|---|---|
| Aantal bouwlagen | 3 |
| Aantal kamers | 6 (waarvan 5 slaapkamers) |
| Aantal badkamers | 1 (en 1 apart toilet) |
| Locatie | |
|---|---|
| Ligging | Aan rustige weg |
| Tuin | |
|---|---|
| Type | Voortuin |
| Hoofdtuin | Ja |
| Oriëntering | Oosten |
| Staat | Prachtig aangelegd |
| Tuin 2 - Type | Achtertuin |
| Tuin 2 - Hoofdtuin | Ja |
| Tuin 2 - Staat | Prachtig aangelegd |
| Energieverbruik | |
|---|---|
| Energielabel | B |
| CV ketel | |
|---|---|
| CV ketel | Nefit HR Combi ketel |
| Warmtebron | Gas |
| Bouwjaar | 2023 |
| Combiketel | Ja |
| Eigendom | Eigendom |
| Uitrusting | |
|---|---|
| Warm water | CV-ketel, Elektrische boiler, Zonnecollectoren |
| Verwarmingssysteem | Centrale verwarming, Houtkachel, Vloerverwarming (gedeeltelijk), Zonnecollectoren |
| Keukenvoorzieningen | Inbouwapparatuur |
| Badkamervoorzieningen | Douche, Dubbele wastafel, Inloopdouche, Toilet, Vloerverwarming, Wastafelmeubel |
| Heeft kabel-tv | Ja |
| Heeft een frans balkon | Ja |
| Glasvezelaansluiting aanwezig | Ja |
| Tuin aanwezig | Ja |
| Heeft een garage | Ja |
| Beschikt over een internetverbinding | Ja |
| Heeft een schuifpui | Ja |
| Kadastrale gegevens | |
|---|---|
| Kadastrale aanduiding | Den Helder K 1726 |
| Perceeloppervlakte | 160 m² |
| Omvang | Geheel perceel |
| Eigendomsituatie | Eigen grond |
Beschrijving
Wonen in een heerlijk ruim huis in De Schooten – Robijn Reijntjesstraat 65!
Met een vanaf prijs van € 425.000,- echt een winner!
Wauw, wat een plek! Je vindt deze fantastische, geschakelde eengezinswoning aan de Robijn Reijntjesstraat 65 in het gezellige Den Helder. Aan de rand van Den Helder, in de Schooten; vrij uitzicht aan de voorkant en een rustige omgeving ben je al snel thuis. Ben je op zoek naar een huis waar je met het hele gezin kunt genieten van comfort, ruimte én een knusse woonwijk? Dan moet je deze kans écht niet voorbij laten gaan.
Een thuis met karakter en luxe
Het huis is gebouwd in 1969 en dat merk je aan de degelijke basis, maar laat je niet misleiden: alles is goed onderhouden en voorzien van moderne gemakken en een tikkeltje luxe. Je stapt binnen in een woning waar je zó je eigen draai aan kunt geven, zonder eerst te hoeven klussen of verbouwen. Van de frisse gevel (met een mooie erker aan de voorzijde en een rustiek balkon aan de achterzijde) tot de stijlvolle afwerkingen binnen – alles ademt comfort en sfeer.
Met een 2 jaar oude Cv, vloerverwarming, goede isolatie en zonnepanelen op het dak, zijn de eerste belangrijke slagen in de verduurzaming al voor je gemaakt.
Lekker veel ruimte binnen en buiten
Met maar liefst 5 slaapkamers heb je aan ruimte geen gebrek! Met 3 slaapkamers op de eerste verdieping en nog eens 2 op de tweede verdieping is een groter gezin, of werken thuis, makkelijk vorm te geven.
En wat denk je van de tuin? Met een perceel oppervlakte van maar liefst 320 m2 en een tuin van wel 113 m2 kun je hier alle kanten op. Barbecueën met vrienden, spelen met de kids of gewoon lekker in je hangmat de dag voorbij laten kabbelen; het kan allemaal. Je hebt zowel een voortuin als een ruime achtertuin om van te genieten. Oh ja, vergeet die handige, externe garage direct achter de woning niet! Parkeren, je fietsen veilig stallen of lekker hobbyen? Geen probleem.
Je loopt je tuin uit de steeg in en hebt dan direct toegang tot je garage (caravan garage).
Heerlijke gezinswijk: volop voorzieningen om de hoek
De woning ligt in de geliefde wijk De Schooten. Een plek waar buren elkaar nog kennen, kinderen lekker buiten spelen en je overal dichtbij zit. Scholen, winkels, sportvoorzieningen en het groen van het park – alles is binnen handbereik. ’s Ochtends even snel wat halen bij de bakker of na het werk een ommetje maken? Je doet het hier zonder gedoe!
Stoer energielabel B – zuinig en comfortabel
Je hoeft je geen zorgen te maken over hoge energielasten, want dit huis pronkt met een energielabel B. Dat betekent niet alleen een comfortabele temperatuur in huis, maar ook minder kosten en een lagere ecologische footprint. Mooi meegenomen toch?
in de afgelopen 2 jaar is er e.e.a. geüpdatet, dus het label zal naar verwachting hoger kunnen zijn.
Speciaal voor gezinnen en doorstromers
Groeien jullie uit je huidige stekje? Hebben de kinderen meer ruimte nodig, of ben je gewoon toe aan een stap vooruit? Deze woning is echt spot-on voor gezinnen en doorstromers die nét dat beetje extra zoeken. De indeling is praktisch, de kamers zijn ruim en multifunctioneel, dus of je nu een thuiskantoor wilt of een speelkamer voor de kids, je hebt meer dan genoeg opties.
**Waarom juist Robijn Reijntjesstraat 65?**
- Supergoed onderhouden woning, helemaal instap klaar
- Gunstig gelegen in een vriendelijke, kinderrijke omgeving
- Ruimtelijke tuinen en veel privacy
- Direct een riante, losse garage tot je beschikking
- Energiezuinig wonen met label B
- Uitstekende verbindingen en voorzieningen vlakbij
Kortom...
Ben je klaar voor een nieuwe stap? Wil je woongeluk ervaren op een rustige, fijne plek met alle ruimte die je je kunt wensen? Pak dan nu je kans en kom eens kijken op de Robijn Reijntjesstraat 65. Wedden dat je meteen verkocht bent?
Bel of mail gerust voor een bezichtiging. Tot snel!
Met een vanaf prijs van € 425.000,- echt een winner!
Wauw, wat een plek! Je vindt deze fantastische, geschakelde eengezinswoning aan de Robijn Reijntjesstraat 65 in het gezellige Den Helder. Aan de rand van Den Helder, in de Schooten; vrij uitzicht aan de voorkant en een rustige omgeving ben je al snel thuis. Ben je op zoek naar een huis waar je met het hele gezin kunt genieten van comfort, ruimte én een knusse woonwijk? Dan moet je deze kans écht niet voorbij laten gaan.
Een thuis met karakter en luxe
Het huis is gebouwd in 1969 en dat merk je aan de degelijke basis, maar laat je niet misleiden: alles is goed onderhouden en voorzien van moderne gemakken en een tikkeltje luxe. Je stapt binnen in een woning waar je zó je eigen draai aan kunt geven, zonder eerst te hoeven klussen of verbouwen. Van de frisse gevel (met een mooie erker aan de voorzijde en een rustiek balkon aan de achterzijde) tot de stijlvolle afwerkingen binnen – alles ademt comfort en sfeer.
Met een 2 jaar oude Cv, vloerverwarming, goede isolatie en zonnepanelen op het dak, zijn de eerste belangrijke slagen in de verduurzaming al voor je gemaakt.
Lekker veel ruimte binnen en buiten
Met maar liefst 5 slaapkamers heb je aan ruimte geen gebrek! Met 3 slaapkamers op de eerste verdieping en nog eens 2 op de tweede verdieping is een groter gezin, of werken thuis, makkelijk vorm te geven.
En wat denk je van de tuin? Met een perceel oppervlakte van maar liefst 320 m2 en een tuin van wel 113 m2 kun je hier alle kanten op. Barbecueën met vrienden, spelen met de kids of gewoon lekker in je hangmat de dag voorbij laten kabbelen; het kan allemaal. Je hebt zowel een voortuin als een ruime achtertuin om van te genieten. Oh ja, vergeet die handige, externe garage direct achter de woning niet! Parkeren, je fietsen veilig stallen of lekker hobbyen? Geen probleem.
Je loopt je tuin uit de steeg in en hebt dan direct toegang tot je garage (caravan garage).
Heerlijke gezinswijk: volop voorzieningen om de hoek
De woning ligt in de geliefde wijk De Schooten. Een plek waar buren elkaar nog kennen, kinderen lekker buiten spelen en je overal dichtbij zit. Scholen, winkels, sportvoorzieningen en het groen van het park – alles is binnen handbereik. ’s Ochtends even snel wat halen bij de bakker of na het werk een ommetje maken? Je doet het hier zonder gedoe!
Stoer energielabel B – zuinig en comfortabel
Je hoeft je geen zorgen te maken over hoge energielasten, want dit huis pronkt met een energielabel B. Dat betekent niet alleen een comfortabele temperatuur in huis, maar ook minder kosten en een lagere ecologische footprint. Mooi meegenomen toch?
in de afgelopen 2 jaar is er e.e.a. geüpdatet, dus het label zal naar verwachting hoger kunnen zijn.
Speciaal voor gezinnen en doorstromers
Groeien jullie uit je huidige stekje? Hebben de kinderen meer ruimte nodig, of ben je gewoon toe aan een stap vooruit? Deze woning is echt spot-on voor gezinnen en doorstromers die nét dat beetje extra zoeken. De indeling is praktisch, de kamers zijn ruim en multifunctioneel, dus of je nu een thuiskantoor wilt of een speelkamer voor de kids, je hebt meer dan genoeg opties.
**Waarom juist Robijn Reijntjesstraat 65?**
- Supergoed onderhouden woning, helemaal instap klaar
- Gunstig gelegen in een vriendelijke, kinderrijke omgeving
- Ruimtelijke tuinen en veel privacy
- Direct een riante, losse garage tot je beschikking
- Energiezuinig wonen met label B
- Uitstekende verbindingen en voorzieningen vlakbij
Kortom...
Ben je klaar voor een nieuwe stap? Wil je woongeluk ervaren op een rustige, fijne plek met alle ruimte die je je kunt wensen? Pak dan nu je kans en kom eens kijken op de Robijn Reijntjesstraat 65. Wedden dat je meteen verkocht bent?
Bel of mail gerust voor een bezichtiging. Tot snel!
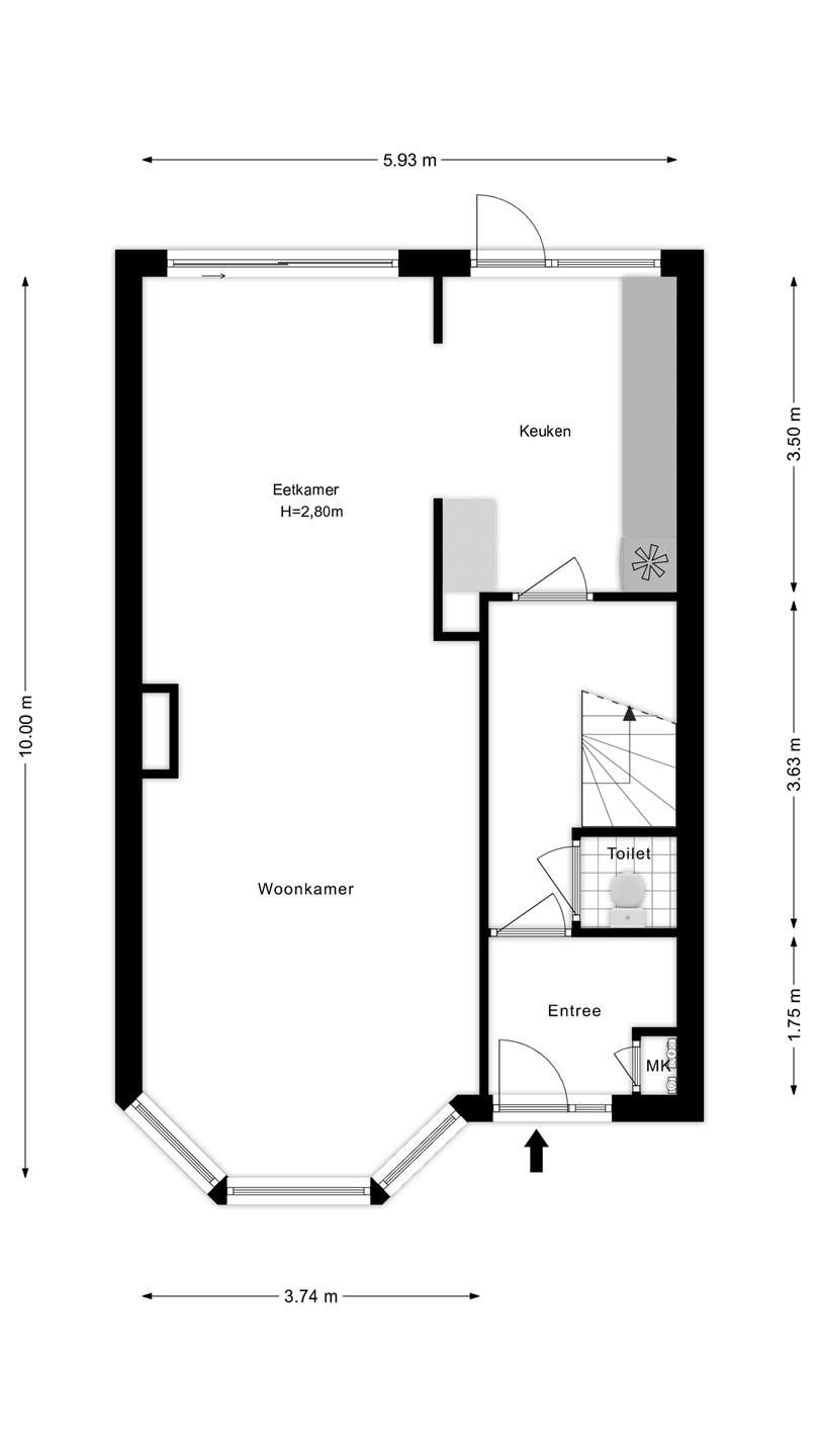
Indeling
Via een mooi aangelegde voortuin, betreed je de woning. De entree is een afgesloten hal met meterkast en garderobe.
De meterkast is gemoderniseerd met knoppen stoppen en diverse groepen.
Via de hal loop je een afgesloten gang in. Hierin is de toilet ruimte terug te vinden en de trap naar boven.
De toiletruimte is modern ingericht; betegeld en een toilet met wastafel.
De baste trap naar boven is met stijl bekleed.
Via een deur loop je de half open keuken in.
De keuken is modern, welliswaar al wat ouder maar waarbij meeste is vervieuwd in de loop der jaren. Voorzien van een granieten aanrechtblad, inductie kookplaat, zafzuigkap, vaatwasser, koel/vriescombinatie, oven en een 10 liter keukenboiler, zodat je van alle gemakken bent voorzien.
Via de keuken kan je de tuin inlopen.
De woonkamer is aan de voorzijde voorzien van een erker, hoe mooi is dat!
Een verruiming van je kamer met een klassieke kwalitatieve uitstraling.
De woonkamer is 10 meter diep met een breedte van 3.74 meter.
In de begaande vloer ligt vloerverwarming. Dit zorgt ervoor dat de temperatuur altijd goed is.
Voor de sfeer is er een mooie houtkachel terug te vinden.
De schuifpui aan de achterzijde geeft direct toegang tot de fraaie achtertuin waarin nog een stenen berging terug te vinden is.
Aan de achterzijde van de tuin loop je een steeg in. Daaraan grenzend is een blok garage boxen en je hebt direct toegang tot je eigen caravan garage.
Met een diepte van 5.63 mtr en een hoogte van 2,80 mtr kan je hier zeer veel kwijt.
De meterkast is gemoderniseerd met knoppen stoppen en diverse groepen.
Via de hal loop je een afgesloten gang in. Hierin is de toilet ruimte terug te vinden en de trap naar boven.
De toiletruimte is modern ingericht; betegeld en een toilet met wastafel.
De baste trap naar boven is met stijl bekleed.
Via een deur loop je de half open keuken in.
De keuken is modern, welliswaar al wat ouder maar waarbij meeste is vervieuwd in de loop der jaren. Voorzien van een granieten aanrechtblad, inductie kookplaat, zafzuigkap, vaatwasser, koel/vriescombinatie, oven en een 10 liter keukenboiler, zodat je van alle gemakken bent voorzien.
Via de keuken kan je de tuin inlopen.
De woonkamer is aan de voorzijde voorzien van een erker, hoe mooi is dat!
Een verruiming van je kamer met een klassieke kwalitatieve uitstraling.
De woonkamer is 10 meter diep met een breedte van 3.74 meter.
In de begaande vloer ligt vloerverwarming. Dit zorgt ervoor dat de temperatuur altijd goed is.
Voor de sfeer is er een mooie houtkachel terug te vinden.
De schuifpui aan de achterzijde geeft direct toegang tot de fraaie achtertuin waarin nog een stenen berging terug te vinden is.
Aan de achterzijde van de tuin loop je een steeg in. Daaraan grenzend is een blok garage boxen en je hebt direct toegang tot je eigen caravan garage.
Met een diepte van 5.63 mtr en een hoogte van 2,80 mtr kan je hier zeer veel kwijt.
Eerste verdieping
Via de vaste trap in de gang kom je op de eerste verdieping.
Op de overloop vindt je 3 slaapkamers en een badkamer.
Aan de achterzijde zijn 2 slaapkamers gesitueerd (3.36 x 4.36) en (2.42 x 3.46).
Aan de voorzijde is er nog een slaapkamer van (3.69 x 3.85).
De badkamer vindt je ook aan de voorzijde.
Ook hierin is vloerverwarming aangebracht; vindt je een dubbele wasbak met meubel; een inloop douche en een zwevend toilet.
De badkamer is mooi betegeld.
Op de overloop is een vaste trap te vinden naar de tweede verdieping (zolder).
Op de overloop vindt je 3 slaapkamers en een badkamer.
Aan de achterzijde zijn 2 slaapkamers gesitueerd (3.36 x 4.36) en (2.42 x 3.46).
Aan de voorzijde is er nog een slaapkamer van (3.69 x 3.85).
De badkamer vindt je ook aan de voorzijde.
Ook hierin is vloerverwarming aangebracht; vindt je een dubbele wasbak met meubel; een inloop douche en een zwevend toilet.
De badkamer is mooi betegeld.
Op de overloop is een vaste trap te vinden naar de tweede verdieping (zolder).
Tweede verdieping
Op de tweede verdieping is er een overloop met 2 slaapkamers.
Hierop is de eerste ruimte voor de CV-ketel; de omvormer en de wasmachine/droger ruimte.
De HR CV-ketel is van 2023.
Dan is er een slaapkamer (2.43 x 2.32) met een dakkapel.
Een tweede slaapkamer (over de gehele diepte van de zolder met een afmeting van (6.23 x 3.74) maakt het kompleet.
Hierbij is ook de dakkapel aanwezig om de ruimte volume te geven.
Hierop is de eerste ruimte voor de CV-ketel; de omvormer en de wasmachine/droger ruimte.
De HR CV-ketel is van 2023.
Dan is er een slaapkamer (2.43 x 2.32) met een dakkapel.
Een tweede slaapkamer (over de gehele diepte van de zolder met een afmeting van (6.23 x 3.74) maakt het kompleet.
Hierbij is ook de dakkapel aanwezig om de ruimte volume te geven.
Balkon
Op de eerste verdieping op de achterzijde, is een slaapkamer voorzien van een balkon.
Lekker buiten zitten bij een opkomende zon......
Lekker buiten zitten bij een opkomende zon......
Tuin
Aan de voorzijde van de woning is een fraai aangelegde tuin die de toegang tot de woning kleur geeft.
Aan de achterzijde is de hoofdtuin vorm gegeven.
Deze is fraai aangelegd; zo'n 13 meter diep en voorzien van een stenen berging (3.36 x 2.47) en een achteruit die aansluit op de achterliggende steeg.
Direct aan de steeg is de deur die toegang geeft tot de caravan garage.
De meet b 3.25 x d 5.63 x h 2.80 en geeft dus ontzettend veel bergruimte!
Aan de achterzijde is de hoofdtuin vorm gegeven.
Deze is fraai aangelegd; zo'n 13 meter diep en voorzien van een stenen berging (3.36 x 2.47) en een achteruit die aansluit op de achterliggende steeg.
Direct aan de steeg is de deur die toegang geeft tot de caravan garage.
De meet b 3.25 x d 5.63 x h 2.80 en geeft dus ontzettend veel bergruimte!
Bijzonderheden
De garage is onderdeel van een VVE.
Hiervoor betaal je €30.- per jaar aan bijdrage.
Hiervoor betaal je €30.- per jaar aan bijdrage.